Аренда коттеджей в Финляндии 750043 HYRYNSALMI, UKKOHALLA, HALLAKKA MÖKKI
-
Описание коттеджа
-
Таблица занятости
-
Условия и правила бронирования
-
Отзывы
Отзывы о HALLAKKA MÖKKI
-
Условия бронирования
-
FAQ
-
Инструкция по бронированию
-
Инструкция по оплате
-
Форма согласия
-
Виза в Финляндию
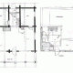
Информация о коттедже
Оснащение коттеджа
Расположение коттеджа
При заказе, бронировании и аннулировании забронированных услуг в отношении коттеджей для отдыха АО Lomarengas/FinFun придерживается следующих условий.
Данные условия становятся обязательными для обеих сторон после перевода суммы клиентом на счет АО Lomarengas/FinFun или оплаты упомянутого в данных условиях аванса, или же одновременной оплаты как аванса, так и остатка суммы.
Бронирование и условия оплаты
Клиенту высылается счет с адресными и личными данными владельца или администратора объекта отдыха, маршрут проезда к месту нахождения ключей или же до объекта отдыха, а также реквизиты банковского счета АО Lomarengas/FinFun. Все замечания по выставленному счету должны быть сделаны в течение 7 суток с даты выставления счета. При оплате необходимо указать номер клиента и номер счета.
Бронирование считается подтвержденным при оплате клиентом авансовой суммы в размере 20% от суммы аренды коттеджа, однако не более 148 евро, до истечения срока платежа (14 суток с даты выставления счета), или при одновременной оплате аванса и суммы остатка. Остаток суммы вносится не позднее 6 (шести) недель до начала отдыха.
Если период бронирования коттеджа составляет четыре или более недель, или же если сумма аренды составляет более 2500 (двух тысяч пятисот) евро, взимаемая сумма аванса составляет 50% от суммы аренды, однако не более 500 евро.
В случае игнорирования оплаты и сроков оплаты бронирование может быть аннулировано без особого уведомления об этом клиента.
Если до начала забронированного времени 63 суток (9 недель) или более, сумма вносится двумя частями. Аванс должен быть выплачен по истечении 14 суток с даты выставления счета. Окончательный расчет должен быть произведен за 6 недель до начала отдыха.
Если до начала забронированного времени 50-62 суток (7-9 недель), вносится вся сумма полностью, а счет должен быть оплачен за 6 недель до начала отдыха.
Если до начала забронированного времени 21-49 суток (3-7 недель), вносится вся сумма полностью, а счет должен быть оплачен по истечении недели с даты выставления счета..
Если до начала забронированного времени 20 суток или менее, вносится вся сумма полностью, а счет должен быть оплачен по истечении 2 суток с даты выставления счета.
Если до начала забронированного времени 6 суток или менее, вся сумма вносится незамедлительно в тот же день.
В тех случаях, когда до забронированного времени 20 суток или менее, напоминание об оплате не высылается. При игнорировании оплаты бронирования АО Lomarengas/FinFun аннулирует бронирование без отдельного уведомления об этом.
Бронирование на период Нового года 2010/2011
В период с 27.12.2010 - 10.01.2011 к стоимости аренды коттеджа обязательно будут прибавляться повышенная стоимость финальнальной уборки /максимум 250 евро/ и стоимость постельного белья. Эти услуги будут выделены в счете отдельно. Депозит в размере 300 – 500 е. Окончательный расчет производится не позднее чем за десять (10 ) недель до начала отдыха.
Для туристических агентств в период c 27.12.2010 по 10.01.2011 будут действовать особые условия оплаты и аннуляции. Которые будут высылаться Lomarengas, FinFun , Yllaksen Matkailu туристическим агентствам до окончательного подтверждения заказа.
Аннулирование и изменение бронирования
Аннулирование всегда должно быть направлено в письменной форме (письмо, электронная почта, телефакс) на имя АО Lomarengas/FinFun. Аннулирование считается фактически происшедшим с момента поступления информации об этом АО Lomarengas/FinFun. Аннулирование будет принято, несмотря на то, что оно запоздало или же вообще не дошло до адресата, если клиент докажет, что аннулирование выполнено и направлено по правильному адресу и своевременно.
В случае аннулирования аванс не возвращается. При аннулировании бронирования менее чем за 21 сутки до начала отдыха взимается вся сумма полностью. Если объект отдыха удастся сдать в аренду другому клиенту, с которого будет получена соответствующая сумма, в качестве расходов за аннулирование будет взиматься только сумма аванса.
Независимо от вышеуказанного клиент имеет право на получение выплаченной АО Lomarengas/FinFun суммы за исключением суммы аванса, если сам клиент или же живущее с ним в одном хозяйстве лицо серьезно заболело, попало в аварию или скончалось. Об аннулировании необходимо незамедлительно проинформировать АО Lomarengas/FinFun и это необходимо доказать АО Lomarengas/FinFun достоверным образом, например, врачебной справкой. В случае аннулирования позднее чем за 48 часов до начала забронированного времени или во время отдыха произведенные клиентом выплаты не компенсируются.
В случае внесения клиентом корректив в условия бронирования (объект бронирования, дополнительные услуги или количество отдыхающих) АО Lomarengas/FinFun имеет право взыскать в качестве расходов 14,44 евро. Коррективы должны быть внесены не позднее 6 (шести) недель до начала забронированного времени. Изменения, внесенные позднее, рассматриваются как аннулирование предыдущего бронирования и новое бронирование.
Право АО LOMARENGAS/FINFUN на аннулирование бронирование
В тех случаях, когда речь идет об обстоятельствах непреодолимой силы (форс-мажор), АО Lomarengas/FinFun может аннулировать бронирование. В этом случае клиент имеет право получить выплаченные им АО Lomarengas/FinFun суммы полностью. В случае игнорирования оплаты и сроков оплаты бронирование может быть аннулировано без отдельного уведомлeния об этом клиента. Если бронирование будет прервано по причине хулиганского поведения внесенные суммы не возвращаются.
Проживание в коттедже
Ключи от коттеджа выдаются клиенту в момент прибытия, о котором он должен по телефону или в письменной форме заранее уведомить владельца или администратора . Владелец или администратор имеют право взыскать за ключи залог в сумме 75 евро. Если клиент не вернет ключи от коттеджа, и это будет рассмотрено как потеря ключей вследствие собственной небрежности, с клиента будет взыскана сумма реальных расходов по замене замков за вычетом возможного залога.
В случае недельного бронирования клиент может пользоваться коттеджем с 16.00 дня прибытия до 12.00 дня убытия. В случае бронирования на выходные клиент может пользоваться коттеджем с 16.00 пятницы до 22.00 воскресенья. В лыжных центрах коттеджем можно пользоваться при бронировании на выходные с 16.00 пятницы до 12.00 воскресенья. О времени сдачи коттеджа есть упоминание в счете или описании объекта.
Сумма аренды отдельных коттеджей включает свободное пользование помещениями для отдыха и сауной. Свободное пользование весельной лодкой входит в стоимость только при бронировании коттеджей на берегу в летнее время, если об этом имеется отдельное упоминание. На турбазах и в коттеджных поселках за пользование сауной и весельной лодкой может взиматься отдельная плата.
В стоимость аренды коттеджа входит мебель, кухонная и столовая посуда и приборы, в также топливо для обогрева, приготовления пищи и освещения. Матрацы, одеяла и подушки входят в стоимость аренды. Постельное белье и полотенца не включены в стоимость аренды.
За уборку коттеджа во время отдыха и по окончании отпуска отвечает сам клиент. Владелец коттеджа или администратор имеют право взыскать залог за уборку в сумме 75 евро. Если по окончании отдыха уборка не произведена или же произведена неполностью и владелец / администратор вынуждены сами ее произвести до вселения следующего клиента, владелец, администратор или АО Lomarengas/FinFun имеют право взыскать за уборку сумму не менее 75 евро за вычетом возможного залога.
В коттедже может проживать не более того количества лиц, которое указано в рекламном буклете как количество спальных мест, или же в соответствии с договором о бронировании коттеджа. Пользование палаткой или жилым прицепом на участке объекта отдыха запрещено без разрешения владельца. О домашних животных необходимо поставить в известность при бронировании и привозить их можно только на те объекты, где их нахождение разрешено. Курение запрещено во всех помещениях объекта отдыха.
Компенсация ущерба и препятствие непреодолимой силы
Клиент обязан возместить непосредственно владельцу объекта весь ущерб, нанесенный объекту отдыха и движимому имуществу объекта.
АО Lomarengas/FinFun не несет ответственности за такой ущерб, нанесенный клиенту, причиной которого стало заранее не предвиденное препятствие непреодолимой силы (форс-мажор) или же иная соответствующая причина (например, природные явления, прекращение подачи электроэнергии и т.д.), не зависящие от АО Lomarengas/FinFun, и последствия которых АО Lomarengas/FinFun не могло предотвратить на приемлемых условиях.
Обжалование
Все замечания по объекту отдыха и жалобы в случае возникновения причин их появления и во время забронированного времени необходимо незамедлительно направлять непосредственно владельцу объекта или администратору. Если меры приняты не будут, клиенту необходимо в течение 72 часов связаться с АО Lomarengas/FinFun. Если же меры и после этого не будут приняты, клиент может подать письменную жалобу АО Lomarengas/FinFun. Как правило, это необходимо сделать в течение месяца после окончания забронированного времени.
Применяемое законодательство и место юридического рассмотрения споров
Договаривающиеся стороны должны стремиться разрешить возникшие споры путем переговоров между собой. Если вследствие переговоров не удастся придти к соглашению, споры будут рассматриваться в суде первой инстанции города Хельсинки.
Право на изменение цен
АО Lomarengas/FinFun оставляет за собой право на исправление ценовой информации, содержащейся в рекламном буклете, до заключения договора. После заключения договора АО Lomarengas/FinFun имеет право повышать и, соответственно, обязано снижать оговоренную цену в случае изменения налогов и публичных выплат, влияющих на расценки услуг по предоставлению коттеджей для отдыха.
Октябрь 2007 года
Ниже некоторые из часто задаваемых вопросов. Мы надеемся. что ответы помогут вам спланировать свой отдых в Финляндии.
- Где я могу получить туристическую информацию о Финляндии?
Данные по Финляндии, информацию о стране и средствах сообщения можно получить на Интернет-страницах Туристического управления Финляндии: http://www.visitfinland.ru/
- Как я могу узнать какие из коттеджей еще свободны?
Воспользуйтесь оперативной службой на Интернет-страницах фирмы Lomarengas, кликните на Holiday Cottages. Вы можете проверить описание. Введите ARRIVAL DATE (дату прибытия) и DEPARTURE DATE (дату выезда) и кликните на SEARCH (поиск) для нахождения перечня свободных коттеджей.
- Как мне легче всего зарезервировать коттедж для отдыха?
Воспользуйтесь онлайн-сервисом на Интернет-страницах фирмы Lomarengas. Когда Вы найдете подходящий коттедж, кликните на BOOK и введите свое имя, полный адрес и контактные данные латиницей (латинскими буквами).
- Что произойдет после того, как я зарезервировал(а) коттедж?
Мы вышлем вам по электронной почте письменное подтверждение о вашем резервировании ( счет ) одновременно с инструкцией по оплате и дорожной информацией к коттеджу.
- Как мне произвести оплату?
Мы укажем номер нашего банковского счета в Финляндии, на который должен быть произведен платеж. Вы также можете произвести оплату кредитной картой. Мы принимаем VISA, EUROCARD и MASTERCARD. Если вы хотите оплатить кредитной картой, пожалуйста, сообщите нам (по телефону или письмом) 16-значный номер карты и 3-значный номер CVC/CVV на той стороне вашей карты, где стоит образец подписи и дата «годен до».
- Получу ли я уведомление о том, что платеж поступил?
Нет, мы не информируем клиентов отдельно о поступлении платежа. Если же мы не получим платеж, мы свяжемся с вами. По просьбе мы отправляем подтверждение для приложения к заявлению на получение визы.
- Когда я должен уведомить о времени своего прибытия в коттедж?
Вы должны уведомить владельца коттеджа о времени своего прибытия заранее .
Лучше это сделать когда вы пересечете границу и будете в Финляндии.
Позвоните хозяину или можете отправить СМС сообщение : cottage number , arrival time.
Если вы заранее знаете , что приедете в коттедж на много позже чем в 16.00 , то можете сообщить об этом за несколько дней до приезда. - Что будет, если я или кто-то из членов моей семьи заболеет и не сможет приехать в отпуск? Получу ли я какую-то часть денег обратно?
Вы получите бoльшую часть денег обратно. В случае болезни вы потеряете только задаток (20% от суммы аренды, но не более 150 евро). Вы должны отправить нам врачебное освидетельствование и номер вашего банковского счета.
- А что, если мне что-то другое помешает провести отпуск и я аннулирую резервирование?
Выплаченные вами деньги будут возвращены, не считая залога, предоставляя Lomarengas возможность сдать данный объект в аренду другому клиенту.
Если до начала отпуска остается немного времени, то деньги вам не возвращаются. - А что, если я уеду раньше, нежели закончится мой отпуск? Получу ли я обратно какую-то сумму?
Нет, вы не получите деньги обратно.
- Где я могу получить ключ?
Вместе со счетом вы получите дорожную информацию к коттеджу и информацию о том , где забрать ключи. Адрес хозяина и /или смотрителя коттеджа.
- Что мне взять с собой?
В коттедже имеется необходимая столовая посуда и кухонная посуда для приготовления и приема пищи. Расходы на электроэнергию, газ и дрова для отопления входят в стоимость аренды. Возьмите с собой постельное белье и полотенца.
- Могу ли я также взять постельное белье/полотенца напрокат? Если да, то сколько это будет стоить?
Вы можете или зарезервировать постельное белье во время оформления резервирования коттеджа, или же взять напрокат у владельца по прибытии. В обоих случаях цена одна и та же – 10-25 евро с человека. Стоимость белья указана в описании коттеджа.
- Когда я могу начать пользоваться коттеджем?
Не ранее 16.00 (в 4 часа пополудни).
- А что, если мы прибудем ночью или на следующий день? Как мы можем получить ключ?
Вы должны заранее предупредить владельца коттеджа или агента о времени своего прибытия. Это особенно важно, если вы собираетесь прибыть на следующий день или поздно ночью. Владелец или агент тогда будет там встречать вас.
- Будет ли владелец разговаривать на русском или английском?
Многие владельцы говорят на приемлемом английском. По-русски говорят редко.
- А что, если возникнут проблемы с языком?
Вы можете связаться с Lomarengas с 08.30 до 16.30 (пн.- пт.) по телефону: +358 306 502 520 .
- Что я должен сделать в конце отпуска? Должен ли я прибраться в коттедже?
Вы можете наслаждаться своим отдыхом полноправно до самого последнего дня, не занимаясь уборкой коттеджа в конце своего пребывания. Вы должны зарезервировать огенеральную уборку или заранее у Lomarengas, или у владельца объекта, где проводите отпуск, в среднем по цене 100 евро (50-500 евро), в зависимости от объекта. Цена приведена в описании коттеджа.
Но если вы хотите выполнить генеральную уборку сами, пожалуйста, запомните следующие правила: половики и ковры должны быть вынесены на улицы и выбиты, коттедж пропылесосен, сделана влажная уборка полов, спальное белье проветрено на улице, кухонная и столовая посуда вымыта, сауна и туалет должны быть чистыми, все отходы вынесены к месту сбора мусора.
- Какое время я могу оставаться в коттедже в день отъезда?
До середины дня (12.00). Позднее вы должны вернуть ключи. Если это резервирование на выходные, вы можете оставаться до 22.00 в воскресенье, если не сказано иначе.
Есть ли у вас еще какие-нибудь вопросы? Не стесняйтесь задавать их! Мы рады оказать вам услугу!
Lomarengas - Finnish Country Holidays
Тел.: +358 306 502 520 (по-русски).
Инструкция по бронированию коттеджа в Финляндии
Выбрав понравившийся Вам коттедж, Вам необходимо ознакомиться с «Условиями бронирования» и «Условиями проживания», а также с вопросами, часто задаваемыми российскими пользователями при бронировании коттеджей «FAQ». Если Вас все устраивает, перейдите непосредственно к бронированию.
Нажатие оранжевой кнопки «БРОНИРОВАНИЕ» перенесет Вас непосредственно в бронирование выбранного Вами коттеджа в системе Lomarengas. В правой части экрана Вы увидите таблицу, подобную указанной на рисунке 1.

Воспользовавшись красными стрелочками в нижней части таблицы, Вы сможете посмотреть периоды, когда коттедж свободен. Розовым отмечены уже занятые периоды, зеленым свободные, а белым - невозможные к бронированию (например, зимой в летнем коттедже). Выбрав свободный и интересующий Вас период, нажмите на белое поле «Choose» в верхней части таблицы и выберите период, на который Вы хотите забронировать Ваш коттедж. Если у Вас появилась надпись (Рисунок 2), то проверьте, правильно ли Вы задали дату бронирования или введите другую дату.

Если в результате Вашего выбора Вы получили таблицу в подобном виде (Рисунок 3), то проверьте цену, указанную на бронирование выбранного Вами коттеджа на указанный период. Система по умолчанию предлагает Вам выбрать бронирование на неделю, но нажав второе белое поле «Choose» вверху таблицы, Вы можете изменить промежуток бронирования на более короткий, чем неделя, если это предусмотрено владельцем коттеджа.

Если Вас все устраивает, нажмите на красную клавишу «Book > » внизу таблицы и перейдите к заполнению данных бронирования (Рисунок 4). Все данные заполняйте английскими буквами. В пожеланиях Вы можете написать, что Вам необходимо подтверждение брони для предоставления в посольство, для получения визы. Заполнив данные согласно описанию в таблице, нажмите кнопку «Calculate Price» и Вы увидите окончательную цену за выбранный Вами период. Если Вас все устраивает, нажмите кнопку «Continue» внизу экрана.

Если все данные были введены правильно, то после нажатия клавиши «Continue» Вы перейдете к этапу проверки данных и окончательному бронированию коттеджа (Рисунок 5).

Если все данные правильны, то нажимайте клавишу ”Book >” в нижней части экрана. После подтверждения бронирования на указанную Вами почту Вы получите счет(Invoice) на оплату коттеджа за выбранный Вами период. О способах оплаты коттеджа Вы можете прочитать, нажав клавишу «Инструкция по оплате».
Если у Вас возникли вопросы по работе системы бронирования, пришлите их нам по адресу russia@swedenhome.ru или перезвоните по телефону +7 (495) 9688538. Мы с удовольствием Вам ответим.
Инструкция по оплате бронирования коттеджей в Финляндии, управляемых компанией Lomarengas.
Получив Cчет ( Invoice) от компании Lomarengas на электронную почту , указанную Вами при бронировании, Вы можете оплатить его двумя, наиболее удобными для Вас способами:
- Способ первый. Оплатить бронирование коттеджа в любом, ближайшем Вам банке, показав Счет (Invoice). Все операции по переводу денег займут не более 5 минут. Результатом перевода , будет документ (SWIFT) , который Вам обязаны выдать в банке. Если Вас не затруднит , пришлите копию этого документа по факсу 8-1035 8 306 502 500 или по электронной почте rusinfo@lomarengas.fi.
- Способ второй. Оплатить бронирование коттеджа Вы можете из дома, с использованием вашей кредитной карты. Для этого Вам необходимо заполнить «Форму согласия на перевод денежных средств с Вашей карты» (скачав ее нажав на ссылку). Заполненную форму Вы можете послать в Lomarengas на электронную почту rusinfo@lomarengas.fi или по факсу 8 (1035) 8 306 502 500.
По всем вопросам оплаты Вы можете связаться с русскоговорящими операторами компании Lomarengas по телефону в Финляндии 8 (1035) 8 306 502 502
Скачать форму согласия
Уважаемые гости, выезжающие на отдых в коттедж !
Копия счета из АО Ломаренгас - ФинФан полученная по электронной почте является основаним для выдачи визы на поездку в Финляндию. Поэтому, если вы оформляете визы сообщите нам следующие данные : фамилии и имена выезжающих , в той транскрипции , в которой они даны в загранпаспорте, номера паспортов, даты рождения. Другие данные не нужны. Писать по-русски никакого текста не надо. Высылать копии паспортов в Ломаренгас не надо.
Образец
PETR NIKOLAEV 26.07.1948 pass. 62 8531605.
В счете будет поставлена отметка об оплате аренды коттеджа.
Lomarengas Oy - Finnish Country Holidays
Etel?esplanadi 22 C, FI-00130 HELSINKI, FINLAND
Tel. + 358 306 502 502
Fax + 358 306 502 500
Email: rusinfo@lomarengas.fi
Internet: www.lomarengas.fi
-
Коттеджи рядом
-
Города рядом
-
Горнолыжные курорты рядом
-
Озёра рядом
-
Реки рядом






